Specification

New grade A development

General office occupancy: up to 1 person per 8sq m

3m floor-to-ceiling heights

LED lighting

300 bicycle spaces and lockers

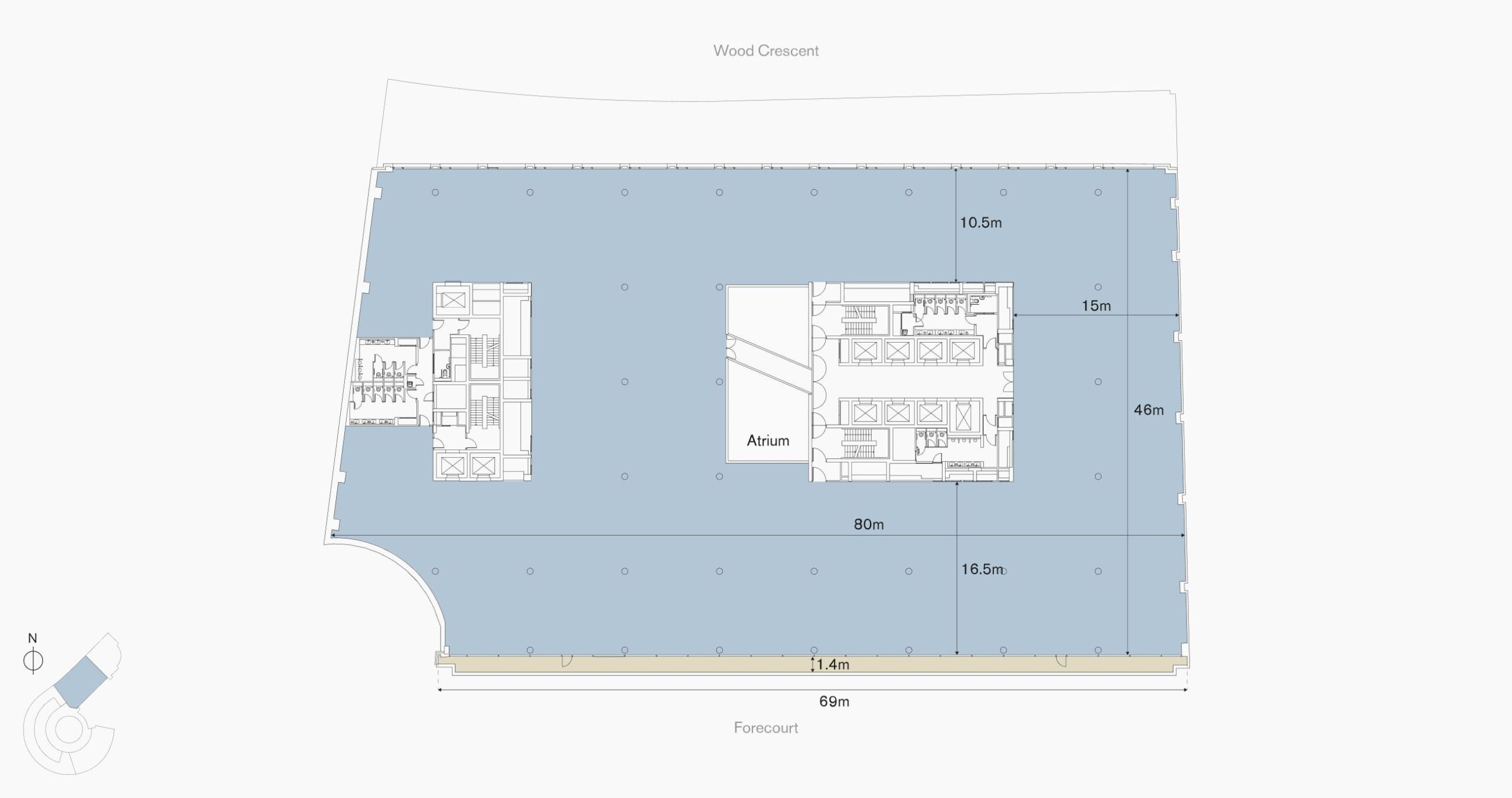
Café in reception with 40m high central atrium

Chilled ceiling system

30 showers (15 female/15 male)

BREEAM excellent

37 car parking spaces

Welcoming reception and distinctive atrium

The office reception sits below the atrium at the centre of the internal street, with seating and breakout areas creating a buzzy and dynamic space with full Wi-Fi coverage and 24-hr concierge.

Dual Entrance and internal street

Allowing easy access from either Wood Lane or the White City stations, the building's two double height entrances lead into a dramatic light filled atrium and are linked by an internal street.

Internal finishes

The atrium brings light to every floor, which each have internal balconies. Contemporary finishes include Canadian Douglas Fir board-shuttered concrete and angled feature windows.

Connecting bridge links

The splayed geometry and staggered positioning of the bridge links make a bold, graphic statement across the atrium, and serves to connect people and activity across floors and between businesses.

Tech infrastructure

Speed

From London to LA in milliseconds

Typical speeds are offered to Tier 1 communications providers’ networks from 2MB to multiple 10MB connections. What that means is, it’s very fast.

Future proof

Scalable and ready

Sophisticated infrastructure already connected to the highest tier data centre communications providers, offering flexibility to evolving technology and needs.

Diversity

Two reliable routes

The site infrastructure is provided with a high-level of resilience, with the built-in option of scaling up or scaling down network systems.

Satellite Comms

Transmit into the open skies

Ample roof space and an uncluttered skyline clear the way for unobstructed microwave and satellite dish transmission.

Installation

Choose a system, and then go live

Television Centre offers a managed network service, making it simple and fast to get systems up and running.

Providers

Your communications provider is already on board

Each of the major communications providers are currently cabled into the site.

Floor Floor sq ft Terrace sq ft
Ninth Publicis Media
Eighth Publicis Media
Seventh 30,055 1,090
Sixth The White Company
Fifth Publicis Media
Fourth Publicis Media
Third Publicis Media
Second Publicis Media
First Publicis Media
Ground floor
Lower ground
Basement
Office total 274,625
Terrace total 8,497

Ground floor

Cycle Store & Lockers
300

Reception
6,954 sq ft

First floor

Office space
35,610 sq ft
3,308 sq m

Second – Fifth floors

Office space
37,370 sq ft
3,472 sq m

Sixth floor

Office Space
32,240 sq ft
2,995 sq m

Terrace
4,995 sq ft
464 sq m

Seventh floor

Office space
30,055 sq ft
2,792 sq m

Terrace
1,090 sq ft
101 sq m

Eighth floor

Office space
13,640 sq ft
1,276 sq m

Terrace
2,175 sq ft
202 sq m

Ninth floor

Office space
13,340 sq ft
1,239 m

Terrace
237 sq ft
20 sq m

Lower Ground floor

Showers
30

Car spaces
37

Single Occupancy
Media 1:8 sq m

Office

  • Cellular offices × 8 8
  • Open plan workstations 348
  • Receptionists 2
  • Breakout/Supplementary workstations
  • Total workstations 43476

Accommodation

  • Client suite meeting rooms
  • 14 seater multi function room × 1 14
  • 20 seater multi function room × 1 20
  • 15-20 seater multi function room × 1 20
  • 10 seater meeting room x 1 10
  • 8 seater meeting room × 1 8
  • 6 seater meeting room x 1 6
  • Total seat count 78

Open plan
Corporate 1:8 sq m

Office

  • Cellular offices 15
  • Open plan workstations 410
  • Total workstations 425

Accommodation

  • Internal meeting rooms
  • 10 seater meeting rooms × 2 20
  • 8 seater meeting rooms x 3 24
  • 6 seater meeting rooms 1 6
  • 4 seater meeting rooms ×5 5
  • Total seat count 70

Open plan
Corporate 1:10 sq m

Office

  • Single cellular offices × 9 9
  • Double cellular offices × 4 4
  • Open plan workstations 326
  • Total workstations 343

Accommodation

  • Internal meeting rooms
  • 18 seater multi-function room × 1 18
  • 16 seater multi-function room × 1 16
  • 14 seater multi-function room x 1 14
  • 12 seater multi-function room × 1 12
  • 10 seater meeting room × 1 10
  • 8 seater meeting room× 1 8
  • 6 seater meeting room × 3 18
  • 4 seater meeting rooms × 6 24
  • Quiet booths× 11 22
  • Total seat count 142

Progressive design for business occupiers

  • 280,000 sq ft of new grade A office accommodation over 9 large and open floors

  • 3-metre floor-to-ceiling heights and terraces on the upper floors

  • Part of an exciting destination with high quality independent restaurants and Soho House members’ club

  • Bike storage and changing facilities supported by 24-hour concierge

  • Platinum Wired Score

  • Design by Stirling Prize-winning architects AHMM

1 Wood Crescent

Nine floors. 120,000 sq ft. Parkside positioning. Snap up a spot in light-filled office spaces structured for sustainability.

1 Television Centre

Fully let to BBC Studios.